Bộ thắng trống thủy lực chính hãng cho cẩu trục
1. Bộ thắng trống thủy lực là gì?
Bộ Thắng trống thủy lực (Electro-hydraulic drum brake) là thiết bị phanh thủy lực an toàn chuyên dụng, được sử dụng trong các hệ thống cẩu trục, cổng trục, băng tải và thiết bị nâng hạ công nghiệp tải trọng lớn.
Thiết bị hoạt động theo nguyên lý đóng phanh bằng lò xo và nhả phanh bằng lực thủy lực, được điều khiển thông qua thruster điện – thủy lực. Cơ chế này giúp phanh hoạt động ổn định, phản ứng nhanh và đảm bảo an toàn tuyệt đối khi mất điện (fail-safe).
Đóng vai trò then chốt trong việc giữ tải, dừng chuyển động và bảo vệ toàn bộ hệ thống truyền động trong môi trường công nghiệp nặng như nhà máy thép, cảng biển, xi măng và logistics
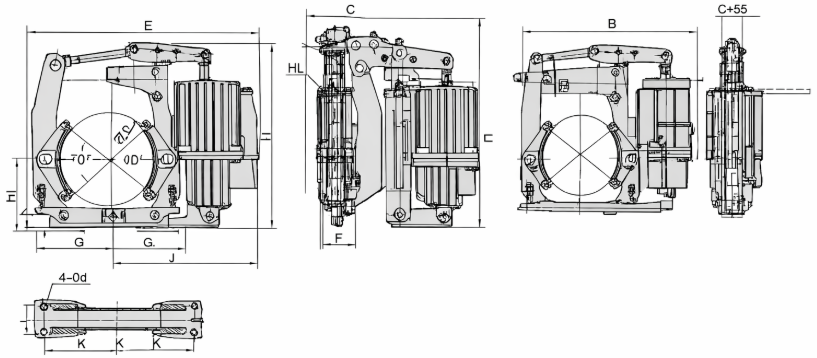
Cấu tạo của thắng trống thủy lực
Tang trống phanh
Bề mặt tiếp xúc trực tiếp với má phanh, chịu mài mòn và tải trọng lớn trong quá trình phanh.
Má phanh
Sử dụng vật liệu ma sát chuyên dụng, đảm bảo lực phanh ổn định và tuổi thọ lâu dài.
Lò xo phanh (Fail-safe)
Đóng phanh tự động khi mất điện, tăng mức độ an toàn cho hệ thống.
Thruster điện – thủy lực ED300-50
Tạo lực nhả phanh chính xác, vận hành êm ái và ổn định lâu dài.
Khung phanh & tay đòn
Kết cấu thép cường độ cao, chịu rung động và tải trọng lớn trong môi trường công nghiệp nặng.
2. Bộ thắng trống thủy lực YWZd có những loại model nào?
| Brake type | Thruster type | Brake torque (Nm) | DIMENSION | Weight (kg) | |||||||||||||||||
| D | h1 | k | i | d | n | b | F | G | J | E | H | A | Q | L | C | ||||||
| A | B | A | B | ||||||||||||||||||
| Drum Brakes YWZB-200/30 | YTD300-50 | 100–200 | 200 | 170 | 175 | 60 | 17 | 8 | 90 | 100 | 210 | 245 | 200 | 475 | 425 | 390 | 80 | 120 | 260 | 80 | 33 |
| Drum Brakes YWZB-300/30 | YTD300-50 | 160–320 | 300 | 240 | 250 | 80 | 22 | 10 | 140 | 130 | 295 | 358 | 275 | 595 | 530 | 495 | 80 | 120 | 260 | 80 | 65 |
| Drum Brakes YWZB-300/50 | YTD500-60 | 315–630 | 585 | 525 | 97 | 157 | 340 | 97 | 86 | ||||||||||||
| Drum Brakes YWZB-400/50 | YTD500-60 | 500–1000 | 400 | 320 | 325 | 130 | 22 | 12 | 180 | 180 | 350 | 420 | 350 | 745 | 665 | 605 | 97 | 157 | 450 | 97 | 111 |
| Drum Brakes YWZB-400/80 | YTD800-60 | 800–1600 | 810 | ||||||||||||||||||
| Drum Brakes YWZB-400/125 | YTD1250-60 | 1000–2000 | 810 | 650 | 620 | 120 | 150 | 450 | 120 | 133 | |||||||||||
| Drum Brakes YWZB-500/125 | YTD1250-60 | 1250–2500 | 500 | 400 | 380 | 150 | 22 | 16 | 200 | 200 | 405 | 484 | 410 | 915 | 730 | 700 | 120 | 145 | 450 | 120 | 212 |
| Drum Brakes YWZB-600/200 | YTD2000-120 | 2500–5000 | 600 | 475 | 475 | 170 | 27 | 20 | 240 | 220 | 500 | 590 | 500 | 1075 | 840 | 810 | 120 | 150 | 450 | 120 | 309 |
| Drum Brakes YWZB-700/200 | YTD2000-120 | 4000–8000 | 700 | 550 | 540 | 200 | 34 | 25 | 280 | 270 | 575 | 760 | 550 | 1255 | 1050 | 1020 | 120 | 150 | 450 | 120 | 375 |
| Drum Brakes YWZB-800/200 | YTD2000-120 | 5000–10000 | 800 | 600 | 620 | 240 | 34 | 28 | 320 | 310 | 660 | 860 | 700 | 1480 | 1190 | 1160 | 120 | 150 | 450 | 120 | 672 |
| Drum Brakes YWZB-800/300 | YTD3000-120 | 6300-12500 | 1480 | 1085 | 1055 | 120 | 145 | 662 | |||||||||||||
3. Những nhà sản xuất phanh thủy lực uy tín trên thị trường
Trên thị trường cầu trục và thiết bị nâng hạ công nghiệp, phanh trống thủy lực được cung cấp bởi nhiều hãng uy tín, đáp ứng các tiêu chuẩn khắt khe về lực phanh, độ bền cơ học và an toàn vận hành.
Một số hãng sản xuất bộ thắng trống thủy lực tiêu biểu gồm:
-
Drum Hydraulic Brake SIBRE (Đức) – thương hiệu hàng đầu châu Âu về phanh công nghiệp, chuyên cung cấp bộ thắng trống thủy lực cho cầu trục tải nặng, cảng biển và ngành khai khoáng.
-
Drum Hydraulic Brake Dellner Brakes (Thụy Điển) – hãng phanh công nghiệp cao cấp, nổi bật với độ chính xác cao, độ tin cậy lớn và tuổi thọ dài, được ứng dụng trong các hệ thống nâng hạ đặc biệt.
-
Drum Hydraulic Brake Stromag (Đức) – nhà sản xuất phanh công nghiệp lâu đời, cung cấp giải pháp thắng trống và thắng đĩa cho nhiều ngành công nghiệp nặng.
-
Drum Hydraulic Brake Emco Dynatorq (Đài Loan) – hãng chuyên phanh công nghiệp và khớp nối, sản phẩm có chất lượng ổn định, phù hợp cho cầu trục và thiết bị nâng hạ.
-
Drum Hydraulic Brake HUAWU (Trung Quốc) – hãng sản xuất bộ thắng trống thủy lực cầu trục, cổng trục và băng tải, có dải sản phẩm đa dạng, đáp ứng tiêu chuẩn DIN/JB, được sử dụng rộng rãi trong nhà máy thép, xi măng và khu công nghiệp nặng.
-
Các hãng OEM theo tiêu chuẩn DIN, JIS – sản xuất theo tiêu chuẩn châu Âu và Nhật Bản, được ứng dụng phổ biến trong nhà máy thép, xi măng, logistics và khu công nghiệp.
4. Vì sao nên chọn bộ thắng trống thủy lực tại Vũ Phan?
Vũ Phan là đơn vị chuyên cung cấp thiết bị phanh cầu trục và phụ kiện truyền động công nghiệp tại Việt Nam, với kinh nghiệm thực tế trong nhiều dự án cầu trục tải trọng lớn.
Cam kết của Vũ Phan:
– Cung cấp bộ thắng trống thủy lực chính hãng, đúng model, đúng thông số kỹ thuật
– Tư vấn lựa chọn phanh phù hợp với tải trọng, tốc độ và điều kiện làm việc thực tế
– Hỗ trợ bản vẽ kỹ thuật, hướng dẫn lắp đặt và vận hành
– Sản phẩm ổn định, an toàn, tuổi thọ cao
– Giá cả cạnh tranh, nguồn hàng rõ ràng
Lựa chọn bộ thắng trống thủy lực tại Vũ Phan là giải pháp đảm bảo an toàn vận hành, giảm rủi ro sự cố và tối ưu chi phí bảo trì cho hệ thống cầu trục lâu dài.
English



Reviews
There are no reviews yet.